Home Plan Pro RSS

Home Plan Pro 5.3.1.2

Home Plan Pro - отличная программа для быстрого и легкого черчения плана помещений, мест и архитектурного дизайна. Программа предлагает множество различных инструментов, которые помогут вам начертить план вашего дома, квартиры, жилых помещений и т.д. Пользователю предлагаются такие инструменты, как линии, овалы, прямоугольники, черчение стен, дверей, окон, арок, кирпичных стен, вставка изображений, текста, дублирование предыдущего элемента и многое другое.

Bukkollaider 28/03/16 Просмотров: 6303 Комментариев: 0
+4
Home Plan Pro 5.2.26.4

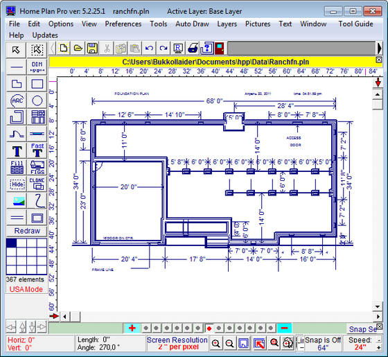
Home Plan Pro - отличная программа для быстрого и легкого черчения плана помещений, мест и архитектурного дизайна. Программа предлагает множество различных инструментов, которые помогут вам начертить план вашего дома, квартиры, жилых помещений и т.д. Пользователю предлагаются такие инструменты, как линии, овалы, прямоугольники, черчение стен, дверей, окон, арок, кирпичных стен, вставка изображений, текста, дублирование предыдущего элемента и многое другое.

Bukkollaider 10/04/13 Просмотров: 6215 Комментариев: 0
0
Home Plan Pro 5.2.26.2

Home Plan Pro - отличная программа для быстрого и легкого черчения плана помещений, мест и архитектурного дизайна. Программа предлагает множество различных инструментов, которые помогут вам начертить план вашего дома, квартиры, жилых помещений и т.д. Пользователю предлагаются такие инструменты, как линии, овалы, прямоугольники, черчение стен, дверей, окон, арок, кирпичных стен, вставка изображений, текста, дублирование предыдущего элемента и многое другое.

Bukkollaider 16/03/13 Просмотров: 5510 Комментариев: 1
0
Home Plan Pro 5.2.26.1

Home Plan Pro - отличная программа для быстрого и легкого черчения плана помещений, мест и архитектурного дизайна. Программа предлагает множество различных инструментов, которые помогут вам начертить план вашего дома, квартиры, жилых помещений и т.д. Пользователю предлагаются такие инструменты, как линии, овалы, прямоугольники, черчение стен, дверей, окон, арок, кирпичных стен, вставка изображений, текста, дублирование предыдущего элемента и многое другое.

ITSS 22/10/12 Просмотров: 5421 Комментариев: 0
0
Home Plan

Home Plan Pro - отличная программа для быстрого и легкого черчения плана помещений, мест и архитектурного дизайна. Программа предлагает множество различных инструментов, которые помогут вам начертить план вашего дома, квартиры, жилых помещений и т.д. Пользователю предлагаются такие инструменты, как линии, овалы, прямоугольники, черчение стен, дверей, окон, арок, кирпичных стен, вставка изображений, текста, дублирование предыдущего элемента и многое другое.

aks85 14/10/12 Просмотров: 5160 Комментариев: 0
0
Home Plan Pro

Home Plan Pro - отличная программа для быстрого и легкого черчения плана помещений, мест и архитектурного дизайна. Программа предлагает множество различных инструментов, которые помогут вам начертить план вашего дома, квартиры, жилых помещений и т.д. Пользователю предлагаются такие инструменты, как линии, овалы, прямоугольники, черчение стен, дверей, окон, арок, кирпичных стен, вставка изображений, текста, дублирование предыдущего элемента и многое другое.

SlaYSteR 16/08/12 Просмотров: 5570 Комментариев: 1
0
Home Plan Pro 5.2.25.18

Home Plan Pro - отличная программа для быстрого и легкого черчения плана помещений, мест и архитектурного дизайна. Программа предлагает множество различных инструментов, которые помогут вам начертить план вашего дома, квартиры, жилых помещений и т.д. Пользователю предлагаются такие инструменты, как линии, овалы, прямоугольники, черчение стен, дверей, окон, арок, кирпичных стен, вставка изображений, текста, дублирование предыдущего элемента и многое другое.

Bukkollaider 05/08/12 Просмотров: 5450 Комментариев: 1
0
Home Plan Pro 5

Home Plan Pro - отличная программа для быстрого и легкого черчения плана помещений, мест и архитектурного дизайна. Программа предлагает множество различных инструментов, которые помогут вам начертить план вашего дома, квартиры, жилых помещений и т.д. Пользователю предлагаются такие инструменты, как линии, овалы, прямоугольники, черчение стен, дверей, окон, арок, кирпичных стен, вставка изображений, текста, дублирование предыдущего элемента и многое другое.

Bukkollaider 31/03/12 Просмотров: 6305 Комментариев: 0
0
Home Plan Pro 5

Home Plan Pro - отличная программа для быстрого и легкого черчения плана помещений, мест и архитектурного дизайна. Программа предлагает множество различных инструментов, которые помогут вам начертить план вашего дома, квартиры, жилых помещений и т.д. Пользователю предлагаются такие инструменты, как линии, овалы, прямоугольники, черчение стен, дверей, окон, арок, кирпичных стен, вставка изображений, текста, дублирование предыдущего элемента и многое другое.

Bukkollaider 24/03/12 Просмотров: 5895 Комментариев: 4
0
Home Plan Pro 5.2.25.12

Home Plan Pro - отличная программа для быстрого и легкого черчения плана помещений, мест и архитектурного дизайна. Программа предлагает множество различных инструментов, которые помогут вам начертить план вашего дома, квартиры, жилых помещений и т.д. Пользователю предлагаются такие инструменты, как линии, овалы, прямоугольники, черчение стен, дверей, окон, арок, кирпичных стен, вставка изображений, текста, дублирование предыдущего элемента и многое другое.

ITSS 12/03/12 Просмотров: 5200 Комментариев: 0
0
Home Plan Pro 5

Home Plan Pro - отличная программа для быстрого и легкого черчения плана помещений, мест и архитектурного дизайна. Программа предлагает множество различных инструментов, которые помогут вам начертить план вашего дома, квартиры, жилых помещений и т.д. Пользователю предлагаются такие инструменты, как линии, овалы, прямоугольники, черчение стен, дверей, окон, арок, кирпичных стен, вставка изображений, текста, дублирование предыдущего элемента и многое другое.

Bukkollaider 21/02/12 Просмотров: 5430 Комментариев: 4
0
Home Plan Pro 5.2.25.8

Home Plan Pro - отличная программа для быстрого и легкого черчения плана помещений, мест и архитектурного дизайна. Программа предлагает множество различных инструментов, которые помогут вам начертить план вашего дома, квартиры, жилых помещений и т.д. Пользователю предлагаются такие инструменты, как линии, овалы, прямоугольники, черчение стен, дверей, окон, арок, кирпичных стен, вставка изображений, текста, дублирование предыдущего элемента и многое другое.

Bukkollaider 16/11/11 Просмотров: 5387 Комментариев: 0
0
Home Plan Pro 5.2.25.7

Home Plan Pro - отличная программа для быстрого и легкого черчения плана помещений, мест и архитектурного дизайна. Программа предлагает множество различных инструментов, которые помогут вам начертить план вашего дома, квартиры, жилых помещений и т.д. Пользователю предлагаются такие инструменты, как линии, овалы, прямоугольники, черчение стен, дверей, окон, арок, кирпичных стен, вставка изображений, текста, дублирование предыдущего элемента и многое другое.

Bukkollaider 28/10/11 Просмотров: 5679 Комментариев: 0
0

Home Plan Pro - отличная программа для быстрого и легкого черчения плана помещений, мест и архитектурного дизайна. Программа предлагает множество различных инструментов, которые помогут вам начертить план вашего дома, квартиры, жилых помещений и т.д. Пользователю предлагаются такие инструменты, как линии, овалы, прямоугольники, черчение стен, дверей, окон, арок, кирпичных стен, вставка изображений, текста, дублирование предыдущего элемента и многое другое.

Bukkollaider 10/08/11 Просмотров: 5340 Комментариев: 0
0

Home Plan Pro - отличная программа для быстрого и легкого черчения плана помещений, мест и архитектурного дизайна. Программа предлагает множество различных инструментов, которые помогут вам начертить план вашего дома, квартиры, жилых помещений и т.д. Пользователю предлагаются такие инструменты, как линии, овалы, прямоугольники, черчение стен, дверей, окон, арок, кирпичных стен, вставка изображений, текста, дублирование предыдущего элемента и многое другое.

Bukkollaider 09/07/11 Просмотров: 5485 Комментариев: 0
0

Home Plan Pro - отличная программа для быстрого и легкого черчения плана помещений, мест и архитектурного дизайна. Программа предлагает множество различных инструментов, которые помогут вам начертить план вашего дома, квартиры, жилых помещений и т.д. Пользователю предлагаются такие инструменты, как линии, овалы, прямоугольники, черчение стен, дверей, окон, арок, кирпичных стен, вставка изображений, текста, дублирование предыдущего элемента и многое другое.

Sanchez01 29/06/11 Просмотров: 5028 Комментариев: 1
0

Home Plan Pro - отличная программа для быстрого и легкого черчения плана помещений, мест и архитектурного дизайна. Программа предлагает множество различных инструментов, которые помогут вам начертить план вашего дома, квартиры, жилых помещений и т.д. Пользователю предлагаются такие инструменты, как линии, овалы, прямоугольники, черчение стен, дверей, окон, арок, кирпичных стен, вставка изображений, текста, дублирование предыдущего элемента и многое другое.

Sanchez01 18/05/11 Просмотров: 4685 Комментариев: 0
0

Home Plan Pro - отличная программа для быстрого и легкого черчения плана помещений, мест и архитектурного дизайна. Программа предлагает множество различных инструментов, которые помогут вам начертить план вашего дома, квартиры, жилых помещений и т.д. Пользователю предлагаются такие инструменты, как линии, овалы, прямоугольники, черчение стен, дверей, окон, арок, кирпичных стен, вставка изображений, текста, дублирование предыдущего элемента и многое другое.

Bukkollaider 23/04/11 Просмотров: 5940 Комментариев: 0
0

Home Plan Pro - отличная программа для быстрого и легкого черчения плана помещений, мест и архитектурного дизайна. Программа предлагает множество различных инструментов, которые помогут вам начертить план вашего дома, квартиры, жилых помещений и т.д. Пользователю предлагаются такие инструменты, как линии, овалы, прямоугольники, черчение стен, дверей, окон, арок, кирпичных стен, вставка изображений, текста, дублирование предыдущего элемента и многое другое.

Bukkollaider 07/03/11 Просмотров: 5016 Комментариев: 2
0
CWER.RU

Home Plan Pro - отличная программа для быстрого и легкого черчения плана помещений, мест и архитектурного дизайна. Программа предлагает множество различных инструментов, которые помогут вам начертить план вашего дома, квартиры, жилых помещений и т.д. Пользователю предлагаются такие инструменты, как линии, овалы, прямоугольники, черчение стен, дверей, окон, арок, кирпичных стен, вставка изображений, текста, дублирование предыдущего элемента и многое другое.

ITSS 13/12/10 Просмотров: 4859 Комментариев: 0
0
1